11 dzīvokļu un 1 pagraba izsole Planīcas ielā 4, Kuldīgā

28/01/2026

SIA "Kuldīgas siltumtīkli" organizē atkārtotu (2. pēc kārtas) elektronisku izsoli ar augšupejošu soli 11 atsevišķiem dzīvokļiem un 1 pagraba telpai. Izsoles periods no 2026. gada 30. janvāra 13.00 līdz 2. marta 13.00.

Izsoles vieta: https://izsoles.ta.gov.lv/

Pirkuma līgums: Pirkuma_līgums_(projekts)

Vērtējums: Planīcas_4Planīcas_4-1N(pagrabs)

Atzinums: Par_dzīvojamās_mājas_sadali

Dzīvokļa īpašums Planīcas ielā 4-1

  • Īpašums sastāv no dzīvokļa 54,6 m² platībā, pie dzīvokļa īpašuma piederošām 546/7465 kopīpašuma domājamām daļām no būves ar kadastra apzīmējumu 6201 014 0109 001 un zemes ar kadastra apzīmējumu 6210140109.
  • Īpašuma sākuma cena - 34 290 EUR, izsoles solis - 100 EUR, drošības nauda - 3 429 EUR.
  • IZSOLES NOTEIKUMI.
  • STĀVU PLĀNS.
  • foto1 / foto2 / foto3 / foto4 / foto5

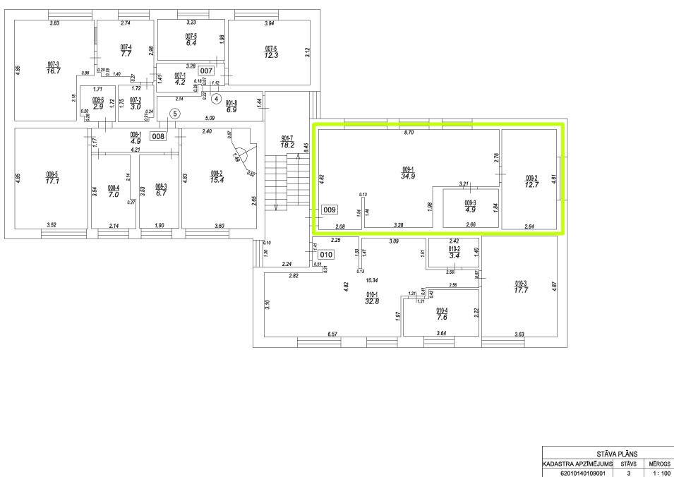
Dzīvokļa (pagraba) īpašums Planīcas ielā 4-1N

  • Īpašums sastāv no dzīvokļa 89,7  m² platībā, pie dzīvokļa īpašuma piederošām 897/7465 kopīpašuma domājamām daļām no būves ar kadastra apzīmējumu 6201 014 0109 001 un zemes ar kadastra apzīmējumu 6210140109.
  • Īpašuma sākuma cena – 3 240 EUR, izsoles solis - 100 EUR, drošības nauda - 324 EUR.
  • IZSOLES NOTEIKUMI.
  • STĀVU PLĀNS.
  • foto1 / foto2 / foto3 / foto4 / foto5 / foto6 / foto7

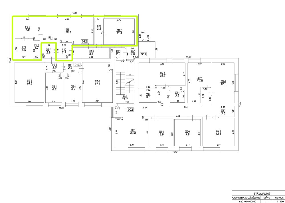
Dzīvokļa īpašums Planīcas ielā 4-2

  • Īpašums sastāv no dzīvokļa 49,4 m² platībā, pie dzīvokļa īpašuma piederošām 494/7465 kopīpašuma domājamām daļām no būves ar kadastra apzīmējumu 6201 014 0109 001 un zemes ar kadastra apzīmējumu 6210140109.
  • Īpašuma sākuma cena - 28 160 EUR, izsoles solis - 100 EUR, drošības nauda - 2 816 EUR.
  • IZSOLES NOTEIKUMI
  • STĀVU PLĀNS.

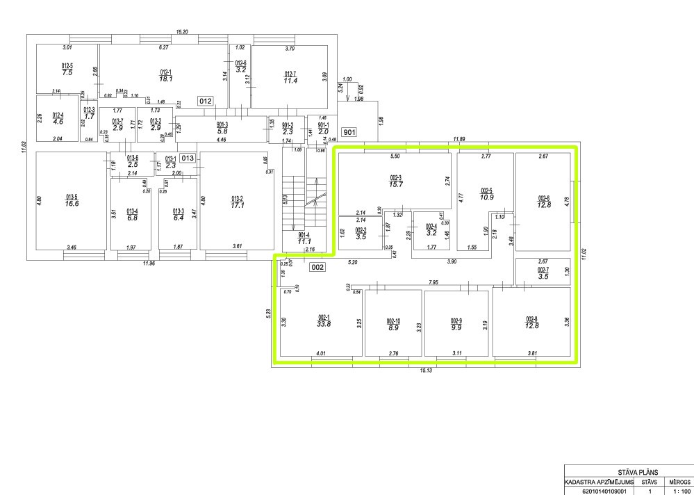
Dzīvokļa īpašums Planīcas ielā 4-3

  • Īpašums sastāv no dzīvokļa 115 m² platībā, pie dzīvokļa īpašuma piederošām 1150/7465 kopīpašuma domājamām daļām no būves ar kadastra apzīmējumu 6201 014 0109 001 un zemes ar kadastra apzīmējumu 6210140109.
  • Īpašuma sākuma cena - 42 400 EUR, izsoles solis - 100 EUR, drošības nauda - 4 240 EUR.
  • IZSOLES NOTEIKUMI.
  • STĀVU PLĀNS.

Dzīvokļa īpašums Planīcas ielā 4-4

  • Īpašums sastāv no dzīvokļa 23,3 m² platībā, pie dzīvokļa īpašuma piederošām 233/7465 kopīpašuma domājamām daļām no būves ar kadastra apzīmējumu 6201 014 0109 001 un zemes ar kadastra apzīmējumu 6210140109.
  • Īpašuma sākuma cena – 18 000 EUR, izsoles solis - 100 EUR, drošības nauda - 1 800 EUR.
  • IZSOLES NOTEIKUMI.
  • STĀVU PLĀNS.
  • foto1 / foto2 / foto3 / foto4 / foto5

Dzīvokļa īpašums Planīcas ielā 4-5

  • Īpašums sastāv no dzīvokļa 48,5 m² platībā, pie dzīvokļa īpašuma piederošām 485/7465 kopīpašuma domājamām daļām no būves ar kadastra apzīmējumu 6201 014 0109 001 un zemes ar kadastra apzīmējumu 6210140109.
  • Īpašuma sākuma cena – 29 200 EUR, izsoles solis - 100 EUR, drošības nauda - 2 920 EUR.
  • IZSOLES NOTEIKUMI.
  • STĀVU PLĀNS.

Dzīvokļa īpašums Planīcas ielā 4-6

  • Īpašums sastāv no dzīvokļa 33,7 m² platībā, pie dzīvokļa īpašuma piederošām 337/7465 kopīpašuma domājamām daļām no būves ar kadastra apzīmējumu 6201 014 0109 001 un zemes ar kadastra apzīmējumu 6210140109.
  • Īpašuma sākuma cena – 24 840 EUR, izsoles solis - 100 EUR, drošības nauda - 2 484 EUR.
  • IZSOLES NOTEIKUMI.
  • STĀVU PLĀNS.

Dzīvokļa īpašums Planīcas ielā 4-7

  • Īpašums sastāv no dzīvokļa 114 m² platībā, pie dzīvokļa īpašuma piederošām 1140/7465 kopīpašuma domājamām daļām no būves ar kadastra apzīmējumu 6201 014 0109 001 un zemes ar kadastra apzīmējumu 6210140109.
  • Īpašuma sākuma cena – 58 500 EUR, izsoles solis - 100 EUR, drošības nauda - 5 850 EUR.
  • IZSOLES NOTEIKUMI.
  • STĀVU PLĀNS.
  • foto1 / foto2 / foto3 / foto4 / foto5 / foto6 / foto7 / foto8

Dzīvokļa īpašums Planīcas ielā 4-8

  • Īpašums sastāv no dzīvokļa 54 m² platībā, pie dzīvokļa īpašuma piederošām 540/7465 kopīpašuma domājamām daļām no būves ar kadastra apzīmējumu 6201 014 0109 001 un zemes ar kadastra apzīmējumu 6210140109.
  • Īpašuma sākuma cena – 30 880 EUR, izsoles solis - 100 EUR, drošības nauda - 3 088 EUR.
  • IZSOLES NOTEIKUMI.
  • STĀVU PLĀNS.

Dzīvokļa īpašums Planīcas ielā 4-9

  • Īpašums sastāv no dzīvokļa 50,3 m² platībā, pie dzīvokļa īpašuma piederošām 503/7465 kopīpašuma domājamām daļām no būves ar kadastra apzīmējumu 6201 014 0109 001 un zemes ar kadastra apzīmējumu 6210140109.
  • Īpašuma sākuma cena – 29 200 EUR, izsoles solis - 100 EUR, drošības nauda - 2 920 EUR.
  • IZSOLES NOTEIKUMI.
  • STĀVU PLĀNS.

Dzīvokļa īpašums Planīcas ielā 4-10

  • Īpašums sastāv no dzīvokļa 61,5  m² platībā, pie dzīvokļa īpašuma piederošām 615/7465 kopīpašuma domājamām daļām no būves ar kadastra apzīmējumu 6201 014 0109 001 un zemes ar kadastra apzīmējumu 6210140109.
  • Īpašuma sākuma cena – 50 400 EUR, izsoles solis - 100 EUR, drošības nauda - 5 040 EUR.
  • IZSOLES NOTEIKUMI.
  • STĀVU PLĀNS.
  • foto1 / foto2 / foto3 / foto4 / foto5 / foto6

Dzīvokļa īpašums Planīcas ielā 4-11

  • Īpašums sastāv no dzīvokļa 52,5  m² platībā, pie dzīvokļa īpašuma piederošām 525/7465 kopīpašuma domājamām daļām no būves ar kadastra apzīmējumu 6201 014 0109 001 un zemes ar kadastra apzīmējumu 6210140109.
  • Īpašuma sākuma cena – 44 640 EUR, izsoles solis - 100 EUR, drošības nauda - 4 464 EUR.
  • IZSOLES NOTEIKUMI.
  • STĀVU PLĀNS.
  • foto1 / foto2 / foto3 / foto4 / foto5

Samaksa par pirkumu - 2 mēnešu laikā no Paziņojuma par pirkuma summu saņemšanas dienas.

Izsoles sākuma datums - 2026. gada 30. janvāris plkst. 13.00.

Izsoles noslēguma datums - 2026. gada 2. marts plkst. 13.00.

Personām, kuras vēlas piedalīties izsolē, līdz 2026. gada 19. februārim jāiemaksā nodrošinājums izsoles noteikumos norādītajā kontā un jānosūta lūgums par autorizāciju izsolei elektronisko izsoļu vietnē https://izsoles.ta.gov.lv.

Tālrunis uzziņām 63350287.

 

Kopsavilkums izsolei

Objekts

Kadastra Nr.

Platība, m2

Sākuma cena, EUR

Statuss

Planīcas iela 4-1 (dzīvoklis)

62019003535

54,6 m²

34 290

Bez apgrūtinājumiem

Planīcas iela 4-1N (pagrabs)

62019003532

89,7  m²

3 240

Bez apgrūtinājumiem

Planīcas iela 4-2 (dzīvoklis)

62019003527

49,4 m²

28 160

Apgrūtināts

Planīcas iela 4-3 (dzīvoklis)

62019003534

115 m²

42 400

Apgrūtināts

Planīcas iela 4-4 (dzīvoklis)

62019003525

23,3 m²

18 000

Bez apgrūtinājumiem

Planīcas iela 4-5 (dzīvoklis)

62019003524

48,5 m²

29 200

Apgrūtināts

Planīcas iela 4-6 (dzīvoklis)

62019003526

33,7 m²

24 840

Bez apgrūtinājumiem

Planīcas iela 4-7 (dzīvoklis)

62019003533

114 m²

58 500

Bez apgrūtinājumiem

Planīcas iela 4-8 (dzīvoklis)

62019003529

54 m²

30 880

Apgrūtināts

Planīcas iela 4-9 (dzīvoklis)

62019003528

50,3 m²

29 200

Apgrūtināts

Planīcas iela 4-10 (dzīvoklis)

62019003530

61,5  m²

50 400

Bez apgrūtinājumiem

Planīcas iela 4-11 (dzīvoklis)

62019003531

52,5  m²

44 640

Bez apgrūtinājumiem